Vælg en side

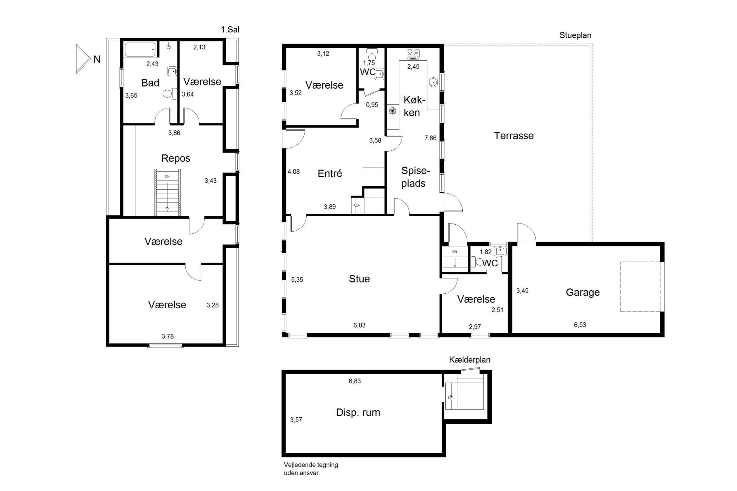
Vestergade

Totalrenovering

Skal vi stå for dit næste projekt?

 

Hos Drømmehjem står vores rådgivere klar til at hjælpe dig med at omsætte dine idéer til konkrete og gennemarbejdede visualiseringer. Uanset om du drømmer om en renovering, en ny indretning eller et helt nyt byggeri, giver vi dig et klart billede af mulighederne, så du kan træffe de rette beslutninger.

Kontakt os allerede i dag for en uforpligtende samtale om, hvordan vi kan støtte dig i processen og sikre, at dit næste projekt bliver præcis, som du forestiller dig.

+45 4222 3207

Kontakt@drømmehjem.dk